For Sale: 75 sqm 3-Room Apartment with Terrace in Versailles Montreuil, €550,000
Key features
- Property Type : Apartment
- Total Living Area : 75 sqm
- Number of Rooms : 3
- Number of Bedrooms : 2
- Number of Bathrooms : 1
- Floor : 4
- Total Number of Floors : 6
- Year of Construction : 2008
- Parking : Basement
- Terrace : Yes
Guided tour
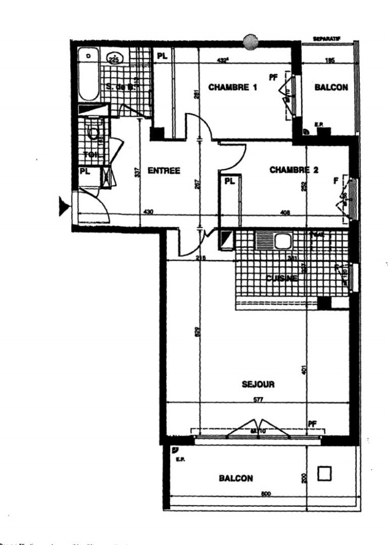
Here you are in front of a unique apartment in the heart of Versailles, in the prestigious Montreuil district. Behind the door of a modern residence built in 2008, lies a place where functionality meets contemporary elegance. Here, every square meter expresses a clear vision of comfort.
The living room, spacious and flooded with light, immediately captures attention. It offers that sought-after feeling of space, perfect for relaxation as well as convivial moments. Imagine afternoons where the sun generously fills the room through large openings. The kitchen, designed in continuity with the room, allows you to entertain or cook without ever breaking the flow of conversation.
- Living room, two bedrooms, a true independent sleeping area
- Terrace ideal for spring breakfasts as well as summer evenings
- Private parking in the basement, ensuring daily tranquility
- Elevator in the residence, for effortless and uncompromising movement
- Peaceful environment, close to essential shops and quick transport
On the night side, two distinct bedrooms, one of which has its own private balcony, invite relaxation. The integrated closets facilitate organization and free up floor space. Bathroom separate from the toilet, for smoother daily use. Every detail is aimed at simplifying family life.
Outside, the terrace naturally stands out as an additional room. A haven for reading the newspaper in the fresh air, enjoying a coffee, or sharing a meal in the sun. Montreuil offers a subtle blend of urban softness and tranquility, while remaining a short distance from the bustling Versailles. A rare balance.
The key advantages of this property are noteworthy:
- Controlled annual charges: 2208.00 euros
- Outstanding energy performance diagnosis (DPE 134), reflecting prudent management
- Peaceful ambiance, particularly appreciated by families
- Schools, shops, transport to Paris: everything is within walking distance
- Especially sought-after area, a true opportunity
In conclusion, this three-room apartment of 75 sqm combines modernity, comfort, and simplicity. A rare offering in Versailles, to be discovered without delay if you're looking for that little extra charm just minutes from the capital.


With an energy label of C at DPE, this property benefits from a respectable energy performance. This means that improvements have already been made to optimize energy consumption. With a few more adjustments, it's entirely possible to achieve even better energy efficiency, allowing you to save money in the long run while reducing your carbon footprint.
With a greenhouse gas emission score of C at DPE, this property benefits from a respectable energy performance. This means that improvements have already been made to optimize energy consumption. With a few more adjustments, it's entirely possible to achieve even better energy efficiency, allowing you to save money in the long run while reducing your carbon footprint.
Location of the property
The agent's opinion
By choosing the Montreuil neighborhood in Versailles, you are opting for the perfect balance between tranquility and urban vitality. This 75 sqm apartment, filled with natural light from morning, stands out due to a design carefully crafted down to the last detail. Every square meter has its purpose. Here, nothing is left to chance.
The recent architecture ensures comfort and modernity. Imagine yourself in the spacious living room, effortlessly opening up to a terrace perfect for Sunday breakfasts and a balcony that extends your summer evenings. As soon as you cross the threshold, the ambient calm takes over. The address places you just a short distance from shops, reputable schools, and direct transport to reach Paris without wasting time.
Low fees, exemplary energy diagnosis: here is a property that ticks all the boxes. Whether you are looking for a secure pied-à-terre or a sound investment, this is a rare opportunity in a highly sought-after environment.

Do you want us to take care of your research? Benefit from the help of a private hunter by clicking here!














