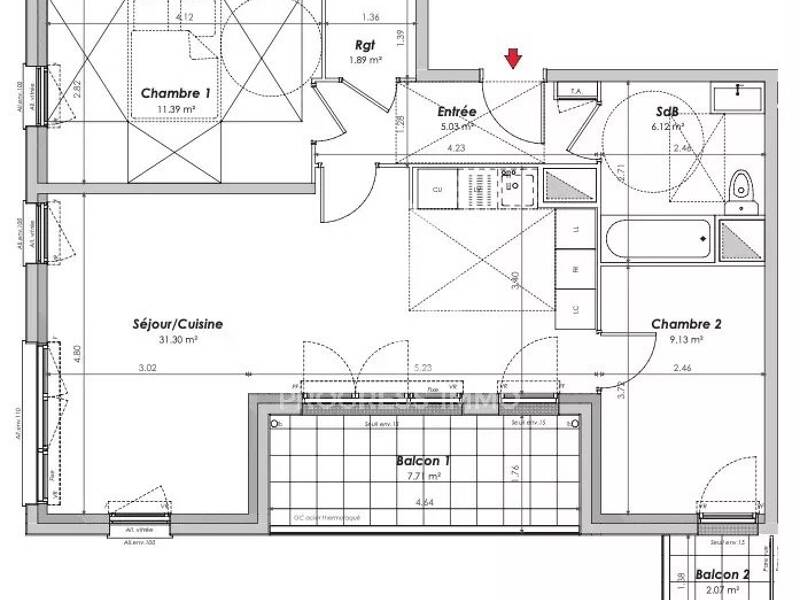
إيجار شقة T3 بمساحة 65م² مع شرفة في ليفري غارغان مقابل 1153€ في الشهر
الميزات الرئيسية
- نوع العقار : شقة
- عدد الغرف : 3
- عدد غرف النوم : 2
- المساحة الإجمالية القابلة للسكن : 65 م²
- بالكون : نعم
- رمز الدخول : نعم
- موقف سيارات : مكانان
- تقييم الطاقة : الفئة A
- نقاط تقييم الطاقة : 69 kWh/m²/سنة
- الإيجار : 1153 €
جولة إرشادية
هل تطمح إلى مكان للعيش العملي والعصري في ليفري غارغان؟ إليك شقة بمساحة 65 م²، غارقة في الضوء، تقع في مجمع سكني افتتح أبوابه للتو في عام 2022. منذ المدخل، تشعر بالذكاء في توزيع المساحات. كل مكان مصمم لتسهيل حياتك اليومية دون الإخلال بالجمالية. بسيط، واضح، فعال: هذا هو روح المكان.
الجزء الرئيسي هو غرفة المعيشة. مفتوحة وودية، تستقبل مطبخًا مجهزًا ومُعدًا بعناية. يمكننا بسهولة تخيل استقبال الأصدقاء لتناول العشاء أو مشاركة فنجان قهوة هادئ عند شروق الشمس. تفتح نافذة كبيرة جدًا نحو شرفة واسعة، مثالية للاسترخاء بعد يوم طويل، أو قراءة كتاب في الهواء الطلق، أو ببساطة للاستمتاع بلحظة من الهدوء تحت الشمس.
- خطة محسّنة: 3 غرف مع غرفتي نوم منفصلتين
- نافذة كبيرة جدًا، ضوء طبيعي وفير وإطلالة مفتوحة
- شرفة حميمية لتمديد أمسياتك أو للتنفس في أي وقت
- موقف سيارات آمن في الطابق السفلي، يمكن الوصول إليه في جميع المواسم
- رسوم شهرية قدرها 220€، مشمولة بالفعل في الإيجار
تنظيم المكان يجعل الحياة اليومية واضحة. تحتوي الحمام على حوض استحمام ومساحات تخزين لمن يفضلون الاسترخاء في خصوصية تامة. يحافظ المرحاض المنفصل على راحتك حتى عندما تشغل العائلة أو الضيوف الغرف الأخرى. كل واحدة من غرف النوم تحتضنك في أجواء هادئة، مناسبة للنوم والسكينة.
فيما يتعلق بالإدارة، فإن هذه الشقة تعني الهدوء: التدفئة مركزية، والمياه الساخنة والباردة مشتركة. انتهى الأمر بالقياسات أو الضبط الذي لا ينتهي. وفي النهاية، بساطة الإدارة وعدم القلق الإضافي. الحي نفسه يوفر لك ملاذًا من الهدوء، مثالي للفصل عن صخب المدينة.
حواليك، كل شيء متوفر: متاجر، مؤسسات تعليمية مشهورة، وسائل النقل العملية. اختيار هذه الشقة يعني الجمع بين فعالية الحياة الحضرية وراحة بيئة هادئة. بالنسبة للكثير من عملائي، إنها التركيبة الناجحة للاستقرار الدائم مع الحفاظ على حرية ثمينة.
في الختام، تمثل هذه الملكية في ليفري غارغان ما يبحث عنه العديد من الأفراد الواعين: الحداثة، الراحة المدرّجة بذكاء، سهولة الوصول، وجودة الحياة الحقيقية. اغتنم الفرصة لإقامة روتينك اليومي في هذه الفقاعة النادرة والمكتملة.


بفضل علامة الطاقة من A إلى DPE، توفر هذه المنشأة توازنًا مثاليًا بين الراحة وكفاءة الطاقة. ستكون قادرًا على الاستفادة من فواتير الطاقة المخفضة والاستهلاك الصديق للبيئة، أثناء العيش في مساحة حديثة ومريحة. هذا المستوى من الكفاءة هو نتيجة التصميم الذكي والمواد عالية الجودة، مما يضمن العزل الممتاز وأداء الطاقة الفائق.
بفضل درجة انبعاثات غازات الاحتباس الحراري من A إلى DPE، توفر هذه المنشأة توازنًا مثاليًا بين الراحة وكفاءة الطاقة. ستكون قادرًا على الاستفادة من فواتير الطاقة المخفضة والاستهلاك الصديق للبيئة، أثناء العيش في مساحة حديثة ومريحة. هذا المستوى من الكفاءة هو نتيجة التصميم الذكي والمواد عالية الجودة، مما يضمن العزل الممتاز وأداء الطاقة الفائق.
موقع العقار
رأي الوكيل
هذه الشقة الجميلة بمساحة 65 م²، الواقعة في مجموعة سكنية حديثة في ليفري-جارجان، تضعك عند تقاطع جميع وسائل الراحة: المحلات التجارية على بُعد خطوات، ووسائل النقل سهلة الوصول. الشرفة تدعو للاسترخاء، لتناول القهوة أو ببساطة للاستمتاع بضوء الصباح. مكانان لوقوف السيارات في الطابق السفلي: هنا، تتناغم حياتك اليومية مع البساطة والهدوء. بيئة سلسة، يبحث عنها الأسر النشيطة أو المستقلين المتطلبين. الإيجار يتوفر بشكل واقعي، بينما يجذب العائد الإيجاري انتباه المستثمرين الباحثين عن قيمة موثوقة. أولئك الذين يفضلون تجربة حياة مكتملة سيجدون هنا نقطة انطلاق ممتازة.

هل تريد منا أن نعتني ببحثك؟ استفد من مساعدة صياد خاص من خلال النقر هنا!




















