شقة دوبلكس 4 غرف 127 م² مع شرفة في كوربفوا مثالية للعائلات 3155 €
الميزات الرئيسية
- نوع العقار : دوبلكس
- عدد الغرف : 4
- عدد غرف النوم : 3
- عدد الحمامات : 1
- عدد دورات المياه : 2
- المساحة الكلية القابلة للسكن : 127 م²
- الطابق : 3
- مصعد : نعم
- بلكونة : نعم
- موقف سيارات : 2 أماكن
جولة إرشادية
هل تبحث عن مكان معيشة نادر، يقع على بُعد خطوات من صخب لا ديفينس، مع هدوء محفوظ في شارع صغير مخفي في كوربفوا؟ هذا الدوبلكس الذي تبلغ مساحته 127 م² ينسج الرابط المثالي بين المتطلبات الحضرية وفسحة السكون.
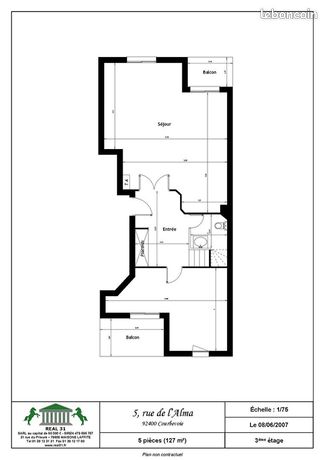
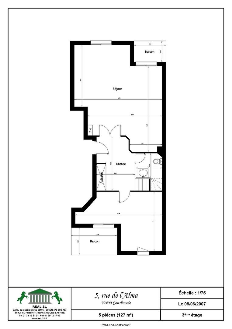
عند فتح الباب، من الصعب مقاومة الانطباع الأول. يفيض الضوء الوفير في هذه المدخل السلس، موجهًا بشكل طبيعي نحو غرفة المعيشة الفسيحة. يخلط هذا الفضاء المركزي، بتوازن دقيق، المطبخ على الطراز الأمريكي، منطقة تناول الطعام وغرفة المعيشة المفتوحة على شرفة تدعو إلى لحظات الاسترخاء في بداية اليوم أو في المساء.
يستضيف هذا المستوى أيضًا غرفة مريحة مع شرفة خاصة بها. المكان المثالي للاستمتاع بفنجان قهوة أمام شروق الشمس، قبل الانغماس في صخب اليوم. عملي: مرحاض منفصل، ميزة غالبًا ما يتم التقليل من شأنها لكنها تجعل الاستخدام اليومي أكثر سهولة.
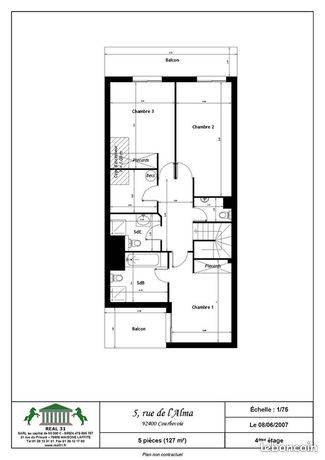
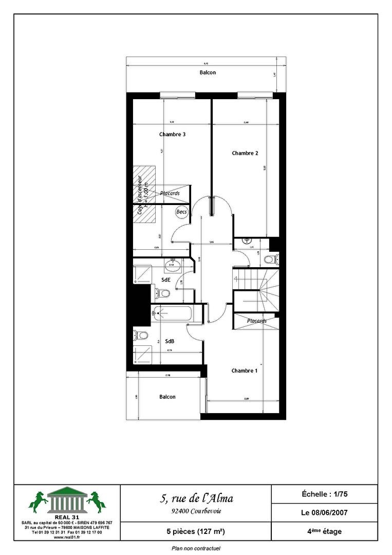
تقود السلم إلى الطابق الأعلى، المصمم للخصوصية والراحة. هناك نجد غرفتين تم تصميمهما بعناية، واحدة منها جناح رئيسي حقيقي مع خزانة ملابس مستقلة. حمام عصري، وحمام إضافي: في هذا المكان، كل تفصيل ينعكس على الحياة النشطة والمتطلبة لليوم.
يجمع هذا الدوبلكس بين المميزات الأساسية:
- غرفة معيشة مضاءة بشكل جيد ذات أحجام واسعة
- مطبخ مفتوح يدعو لمشاركة أفضل اللحظات
- ثلاث غرف تم تجديدها، بما في ذلك جناح رئيسي يلبي التوقعات المعاصرة
- شرفتان جيدتا الاتجاه للاستمتاع بالخارج دون مغادرة المنزل
- موقف سيارة مزدوج في الطابق السفلي – نادر في هذا المستوى من الراحة
تُبسط المرافق حياتك اليومية: قبو خفي، مصعد موثوق، أمان معزز. تتميز الأداءات الطاقية (119 كWh/m² في السنة)، لتجمع بين التحكم في النفقات والوعي البيئي.
هنا، جميع المتاجر والخدمات في المتناول، دون التخلي عن حيوية المنطقة. فرصة لا تحدث كل يوم، لتحويل تجربتك العقارية إلى واقع ملموس. أقترح أن نكتشفها معًا.


بفضل علامة الطاقة C في DPE، تستفيد هذه الخاصية من أداء طاقة محترم. هذا يعني أنه تم إجراء تحسينات بالفعل لتحسين استهلاك الطاقة. مع بعض التعديلات الإضافية، من الممكن تمامًا تحقيق كفاءة أفضل في استخدام الطاقة، مما يتيح لك توفير المال على المدى الطويل مع تقليل بصمتك الكربونية.
بفضل درجة انبعاثات غازات الاحتباس الحراري من A إلى DPE، توفر هذه المنشأة توازنًا مثاليًا بين الراحة وكفاءة الطاقة. ستكون قادرًا على الاستفادة من فواتير الطاقة المخفضة والاستهلاك الصديق للبيئة، أثناء العيش في مساحة حديثة ومريحة. هذا المستوى من الكفاءة هو نتيجة التصميم الذكي والمواد عالية الجودة، مما يضمن العزل الممتاز وأداء الطاقة الفائق.
موقع العقار
رأي الوكيل
هذا الدوبيكس العائلي بمساحة 127 م² يستفيد تمامًا من قربه الفوري من الرئة الاقتصادية للغرب الباريسي: حي الأعمال في لا ديفونس. هنا، يلتقي هدوء الحياة اليومية بالديناميكية الحضرية. تخيل: كل مساحة داخلية تسبح في الوضوح بفضل النوافذ الكبيرة، وتدعو العديد من الشرفات الخاصة إلى أخذ الهواء في الصباح أو عند سقوط الليل، وكوب من القهوة أو الشراب في اليد. غرفة النوم الرئيسية، بعيدة عن كونها مجرد حجة بسيطة، هي من بين تلك الغرف التي يشعر فيها بالراحة الحقيقية، يومًا بعد يوم.
تمنحك مواقف السيارات الثنائية المحمية في الطابق السفلي الحرية من تقلبات أماكن الوقوف، مما يعد شيئًا ثمينًا في المنطقة. من حيث الآفاق، يبرز الإمكانات الإيجارية بوضوح، مدعومًا بطلب مستمر ومنطقة في مرحلة تغيير كاملة. لذا، هذا العقار يفي بجميع المعايير التي يبحث عنها المستثمرون الأذكياء: موقع رئيسي، خدمات دقيقة، ندره في السوق. اغتنام مثل هذه الفرصة هو اختيار للقرار العقلاني وكذلك لقيمة الأصول.

هل تريد منا أن نعتني ببحثك؟ استفد من مساعدة صياد خاص من خلال النقر هنا!






























