Appartement 34 m² lumineux à NOGENT SUR MARNE idéal pour location courte durée à 950 €
Caractéristiques clés
- Type de bien : Appartement
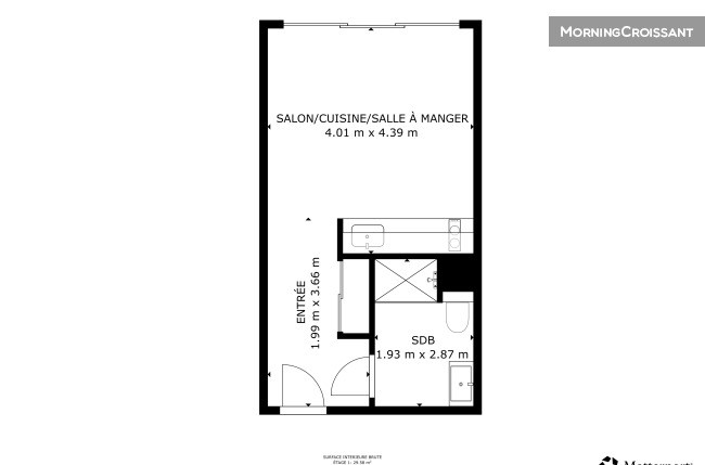
- Surface habitable totale : 34 m²
- Nombre de pièces : 1
- Nombre de chambres : 1
- Nombre de salles de bain : 1
- Étage : 1
- Ascenseur : Oui
- Environnement calme : Oui
- DPE Énergie : A
- Score DPE Énergie : 61 kWh/m²/an
Visite guidée
Imaginez un appartement de 34m² au cœur de Nogent-sur-Marne. Il s’agit d’une perle rare pour ceux qui veulent conjuguer flexibilité et élégance, le temps d’un séjour court. Posé au premier étage d’une résidence paisible, ce lieu vous réserve une atmosphère propice à la fois à la sérénité et à l’efficacité.
Une fois le seuil franchi, la clarté naturelle saisit grâce à de généreuses ouvertures laissant entrer la lumière du jour. La kitchenette équipée a été pensée pour un usage sans effort, mais sans rien sacrifier au plaisir de cuisiner. Voici ce qu’elle propose :
- Réfrigérateur dernier cri
- Four micro-ondes pratique
- Plaques de cuisson
- Cafetière
- Bouilloire
- Tout le nécessaire en vaisselle et ustensiles
Le séjour invite au relâchement, mais offre aussi un vrai cadre où recevoir ou télétravailler. La salle de bain a sa part de raffinement, notamment grâce à une douche à l’italienne pensée dans le moindre détail. Ici, chaque zone de l’appartement a été aménagée pour tirer parti de chaque mètre carré, sans jamais empiéter sur le sentiment d’espace ou de confort.
Ceux qui chérissent tranquillité et discrétion seront comblés. L’immeuble offre un cocon protégé, avec des accès simplifiés par ascenseur. De quoi garantir à la fois confort et sécurité — une vraie nécessité après une journée chargée de rendez-vous ou simplement pour se ressourcer loin de l’agitation.
En synthèse, ce bien propose :
- Cadre apaisé et sûr
- Équipements modernes, où rien ne manque
- Ambiance lumineuse sans équivalent
- Accès rapide à tous les essentiels
- Parfait pour solo ou en duo
S’installer à Nogent-sur-Marne, c’est aussi profiter d’une situation qui facilite le quotidien. Les transports, commerces et espaces verts sont à portée de main : tout est là pour rendre la ville accessible sans concessions. Rarement une location courte durée aura autant allié raffinement, praticité et qualité de vie. Saisissez cette opportunité précieuse de goûter à une nouvelle expérience immobilière.


Avec une étiquette énergétique de A au DPE, cette propriété offre un équilibre parfait entre confort et efficacité énergétique. Vous pourrez bénéficier de factures énergétiques réduites et d'une consommation respectueuse de l'environnement, tout en vivant dans un espace moderne et confortable. Ce niveau d'efficacité est le résultat d'une conception intelligente et de matériaux de qualité, garantissant une excellente isolation et des performances énergétiques supérieures.
Avec un score d'émission de gaz à effet de serre de A au DPE, cette propriété offre un équilibre parfait entre confort et efficacité énergétique. Vous pourrez bénéficier de factures énergétiques réduites et d'une consommation respectueuse de l'environnement, tout en vivant dans un espace moderne et confortable. Ce niveau d'efficacité est le résultat d'une conception intelligente et de matériaux de qualité, garantissant une excellente isolation et des performances énergétiques supérieures.
Emplacement du bien
L’avis de l’agent
En plein cœur de Nogent-sur-Marne, cet appartement de 34 m² niché au premier étage d’une résidence sécurisée coche bien des cases. Chaque mètre carré a été optimisé, reflétant le souci du détail qui fait la différence. L’ambiance, à la fois actuelle et accueillante, saute aux yeux dès l’entrée grâce à une décoration contemporaine et une kitchenette pensée pour le quotidien. Investir ici, c’est choisir un potentiel locatif significatif, notamment sur le marché de la location courte durée. Imaginez une clientèle d’affaires ou des voyageurs recherchant le confort sans compromis, entre deux rendez-vous ou le temps d’un séjour prolongé. Le calme règne, à l’abri du tumulte urbain. Pour boucler la visite : une salle d’eau pensée comme une bulle privée, équipée d’une douche à l’italienne, qui transforme la routine matinale en moment de plaisir. Difficile de trouver aujourd’hui un bien offrant ce savant équilibre entre sérénité, rentabilité et attrait contemporain.

Vous souhaitez que l'on s'occupe de votre recherche ? Bénéficiez de l'aide d'un chasseur privé en cliquant ici !






















